Ceļu barjeras
Barjeras izmanto satiksmes drošības nodrošināšanai un

· Barjeras tiek ražotas no augstvertīga UV stabilizēta polietilēna.
· Barjeras var pasūtīt dažādās krāsās. Standarta krāsas ir sarkana un balta.
· Barjeras ir viegli sakraujamas uzglabāšanai un transportēšanai.
· EVO un EURO barjerām pilnībā noslēdzama savienošanas tapa ļauj
veidot S formas līknes pa kreisi un/vai pa labi, vienlaikus nodrošinot
vienotu, cietu sienu.
Evo barjeras
1m, 1.2m, 1.5m
Ar ūdeni pildāmā Evo plastmasas barjera ir viena no populārākajām
Būvdarbu un ceļa remontu drošibas nodrošināšanas inventāra tirgū.

EVO 1m
1000mm - garums
400mm - platums
550mm - augstums
1000mm - garums
400mm - platums
550mm - augstums

EVO 1.2m
1200mm - garums
400mm - platums
800mm - augstums

EVO 1.5m
1500mm - garums 400mm - platums
550mm - augstums

EURO 2m
2000mm - garums
550mm - platums
650mm - augstums
EVO un EURO barjeras var papildināt aprīkojot ar
stabiņu un atstarojošu elementu.

Barjeru sistēma - RB2000

Lielgabarīta būvdarbu drošības barjera RB2000 ir paredzēta pildīt
ar ūdeni iegūstot 400kg masu, tādejādi nodrošinot izturīgu
būvprojekta norobežojumu.

2000mm – garums
400mm – platums
1000mm - augstums
400mm – platums
1000mm - augstums

Papildus drošībai barjeru sistēmu iespējams aprīkot ar
nožogojumu tādejādi sasniedzot augstumu 2.20m.
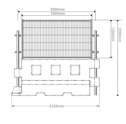
Barjeru sistēma GB2

GB2 lielgabarīta plastmasas ceļu drošības barjera, paredzēta
pildīt ar ūdeni un sasniedzot svaru 350kg.

2000mm -garums
500mm – pamatnes platums
900mm - augstums
500mm – pamatnes platums
900mm - augstums
Papildus drošībai barjeru sistēmu iespējams aprīkot ar
nožogojumu tādejādi sasniedzot augstumu 2.250m.


![]() |
Barjeru sistēma RB22 (Crash Barrier)
Apstiprināts BS EN1317 - N1 80km/h trieciena testā. Barjera paredzēta
transportlīdzekļa apstādināšanai (1.5t) braucot ar ātrumu līdz 80km/h.
Katram sistēmas elementam jābūt piepildītam ar ūdeni, sasniedzot masu 600kg.

2000mm - garums
500mm - platums
800mm -augstums
500mm - platums
800mm -augstums









